--   |  设为首页

帮忙装修网

中山

[切换]

豪横!186㎡只做一居室,二夫妻的理想住宅

来自:中山帮忙装修网 日期:2022-05-26 18:20:53 207070 次 分享到:
导读:
开放的空间、跳跃的颜色,为一对夫妇设计出理想住宅,提供了功能性十足的生活空间。中山帮忙装修网公司分享。

这个公寓面积为 186㎡

由 ONE MORE BURO 工作室打造

开放的空间、跳跃的颜色

为一对夫妇设计出理想住宅

提供了功能性十足的生活空间

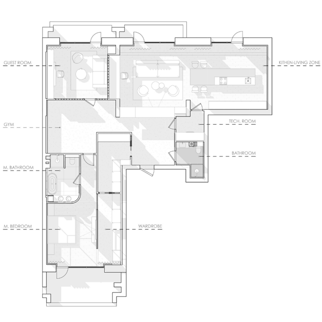
微信图片_20220524110830.png

▲平面图与轴测图

业主希望有足够的工作空间

设计师巧用色彩区分

满足功能的同时动线也要灵活

微信图片_20220524110843.png

门厅以浅色为主

点缀橙色提亮空间

也为住宅奠定色彩基调

与蓝色换鞋凳形成对比色

充满趣味性

微信图片_20220524110846.png

镜面收纳柜在视觉上扩展了空间

提供了充足的储物面积

与墙体的连接添加曲线元素

具有设计感

微信图片_20220524110848.png

艺术挂画与极简黑色门框

搭配造型感的凳子

为普通的角落赋予艺术感

微信图片_20220524110851.png

客厅与餐厅采用开放式布局

灵活宽敞的空间满足生活多样性

并且提升了家人间的交流

微信图片_20220524110854.png

▲客餐厅轴测图

家具整体以浅色为主

周围点缀多种鲜亮的颜色

既趣味又温馨

微信图片_20220524110856.png

软装也选用了浅米色

放置在木地板上舒适、简单

绿色桌几多了一丝活力

同时与餐厅呼应

微信图片_20220524110858.png

电视背景墙选用砖结构

保留原始感

用橙色的立面收纳柜包围

自然与现代的冲撞别有风味

微信图片_20220524110900.png

极简黑色落地灯提供照明

方便移动与使用

墙体上方留有原始材料质感

并用隐藏光源作为衔接

柔和明亮

微信图片_20220524110902.png

不同质感、材料的搭配

构成了具有品味的生活气息

微信图片_20220524110905.png

嵌入式的工作区融合在客厅内

丰富了功能性

橙色与其他细节呼应

极简、干净的设计

很好的充当了空间内的配角

提亮了客厅

微信图片_20220524110907.png

多种方式的收纳便于保持整洁

为工作提供便利

微信图片_20220524110913.png

餐厅以白色为主

个性化的家具更具有趣味性

不同形状的软装搭配

体现出设计感

微信图片_20220524110918.png

餐桌与岛台为一个整体

节省空间的同时具有一体性

吊灯的组合增添了轻盈感

黑色的点缀更加沉稳

微信图片_20220524110920.png

白色橱柜简单、整洁

很好的包容了个性的用餐区

为空间留白

落地窗提供了良好的照明条件

微信图片_20220524110923.png

墙体一侧上方保留砖墙结构

增加细节处理

隐藏光源提供照明

微信图片_20220524110926.png

小物件多为白、黑色调

为彩色提供了包容的环境氛围

平衡的恰到好处

微信图片_20220524110937.png

装修预算不够?快来申请装修贷款!月息低至2.5厘。帮忙装修网为解决业主的装修资金难题,特与银行合作推出“装修贷”,一站轻松办理:18824725983 吴先生

长按二维码关注"帮忙装修网",了解更多装修资讯↓↓↓

或拨打免费热线:13822775923

已成功招标53521