--   |  设为首页

帮忙装修网

中山

[切换]

中山建筑师自已设计的家,兼顾住家和工作

来自:中山帮忙装修网 日期:2021-08-10 17:31:05 144721 次 分享到:
导读:
既是居家,又是工作室,一个建筑师的家,按自已的习性设计的房子,适合自已的才是最好的。中山帮忙装修网公司分享。

既是居家,又是工作室,一个建筑师的家,按自已的习性设计的房子,适合自已的才是最好的。

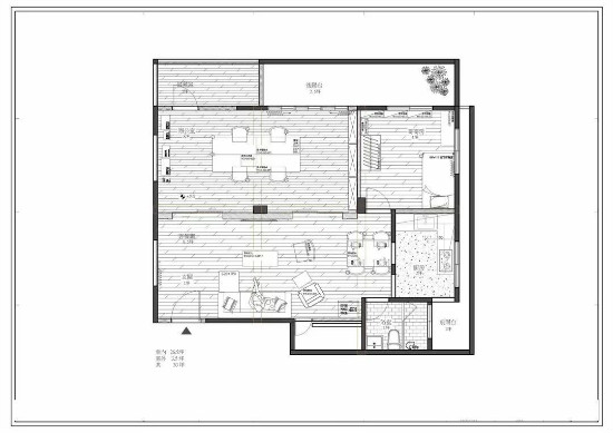
1.jpg

户型图

玄 关

重复使用同质性建材并整合原有梁柱的高低差,将电视主墙、裸露的吊隐式冷气、房门与柜体皆拉齐至2.2米的天花基准线。

客 厅

5.jpg

主动在线的斜面收边设计,是我们在满足屋主小众喜好之余的小玩心。

设计完成的表相爲:工程师在装修上表现出来的精准与洁癖。

8.jpg

餐 厅

书 房

装修预算不够?快来申请装修贷款!月息低至2.5厘。帮忙装修网为解决业主的装修资金难题,特与银行合作推出“装修贷”,一站轻松办理:18824725983 吴先生

 长按二维码关注"帮忙装修网",了解更多装修资讯↓↓↓

或拨打免费热线:13822775923

已成功招标53521